

自古以来,为使房子能够藏风聚气,一般来说都建成“天圆地方”的模样,例如:老北京的四合院,福建客家土楼等等。由于现代化建筑设计的冲击,受地形等因素限制,很多商品房都不再是四四方方,或多或少都会出现缺角。房子一旦出现缺角,不仅仅藏风聚气的效果大打折扣,而且由于缺角打破了平衡的风水格局,从而影响住在房子里面的人的运势,包括:财运,仕途,文昌,丁运,健康等等。

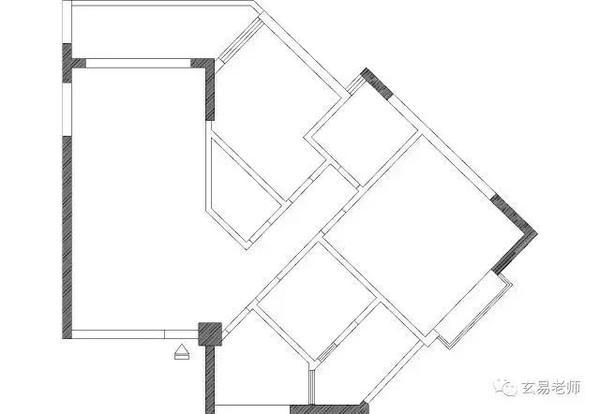
上图就是典型的缺角户型。拿到户型图后,套上八卦图便能看到此户人家的房子缺哪个角,缺多少。事关房屋缺角,对家人肯定有影响,而且影响程度视缺角程度而定。
此房子属于震宫缺角,东方方位为震宫,如果震宫缺角则对家中长子尤为不利,易经中讲“震长男”也就是先天的男孩位。这个方位的气场会影响到家中男孩子的身体,或者是学业和成长。因此这个方位要做到旺相。现在的家庭中大多数是一个孩子,因此夫妻双方都希望自己的孩子长大后会有所出息,这也是每一个父母的心愿。因此在居家风水中一定要注意孩子的风水,一般人不知,认为家中风水与孩子无关,其实不是这样的。家中的风水影响着每一个人,只是影响他们的方位不同而已。

震宫也代表了肝、胆、足等部位的健康,因此震宫缺角,容易导致家人肝胆不足,人难以提起精力,精血虚少,简单来讲就是缺乏阳刚之气,一旦缺少阳刚之气,则容易导致不生发或生发不足,严重者则容易引致头发脱落等现象,其次,震宫主足,因此如果震宫缺失,容易使家人引发足部疾病,例如扁平足,足癣等等。
震卦重雷交叠,相与往来,震而动起出。因此,若然震宫缺角,所缺失的不仅仅是阳刚之气,更严重的是,由于缺失阳刚之气,致使家中在事业上难有作为,无论对于一个家来讲,还是对于一个国来讲,都是极端不利的。试想一下,家中长子,是一个家族中的未来,对于国家来说,太子则是未来国君,主宰国运的浮沉,因此无论是在国这个层面还是家这个层面,震宫不能缺角,否则长男难立。如不及时补救,即使对孩子有着“生子当如孙仲谋”的期望,到头来只能仰天长叹自家孩子不如人。
化解
说到震宫缺角的补救方法,首先视缺角的程度而定,若然缺角面积不大,对于震宫缺角,可以摆放泰山石,缺角面积大则需要更大的泰山石为佳。这里要注意的是,泰山石虽然可以填补化解缺角带来的煞气,但是并非每个角都可以放,具体还需视方位而定。

另外,震宫五行属木,震宫缺角,因此提醒各位设计师朋友,在做设计时,缺角区域的天花适合用木龙骨吊顶、木线条等,并且在射灯的数量上也必须按照五行之数来限定数量,忌用玻璃镜面。立面设计可以多用木属性材料,如:木线条、木板材、木质造型等。空间色彩、软装搭配可用绿色、墨绿色、浅绿色来进行点缀。
房屋缺角,必然会对家人的身心健康造成影响,为此,作为设计师,不能掉以轻心,需要引以重视,房子的外形我们无法改变,但是我们可以通过风水设计的力量使到阴阳平衡,宅人合一。
《相易风水设计》正在招生!
更多风水设计秘诀,
尽在相易风水设计课程
距离课程开班倒计时仅剩5天,
你!还不报名?
我不想告诉你·可忍不住要告诉你一个好消息......
由玄易(黎子)老师主讲
【玄易·易风水·艺设计】网络系列风水课程第一期《一连破败的别墅》于3月10日正式火爆推出!
还没报名的你赶紧报名啦!
还没分享这个消息的你赶紧分享啦!
还在考虑的你,还考虑什么?
学习便是要趁热打铁!
也许你在埋头苦干时,别人已经在一边收听,一边工作;
学习便是要捷足先登!
也许你在停滞不前,别人已经悄悄地学习风水设计知识,把你超越;
学习便是要永不止步!
也许你已经阅历无数,别人虽初出茅庐但是借助前辈经验同样可以炉火纯青!
报名学习!
让你赢在起跑线!
让你途中轻松过关斩将!
让你笑到最后!
郑重声明:此文内容为本网站转载企业宣传资讯,目的在于传播更多信息,与本站立场无关。仅供读者参考,并请自行核实相关内容。

